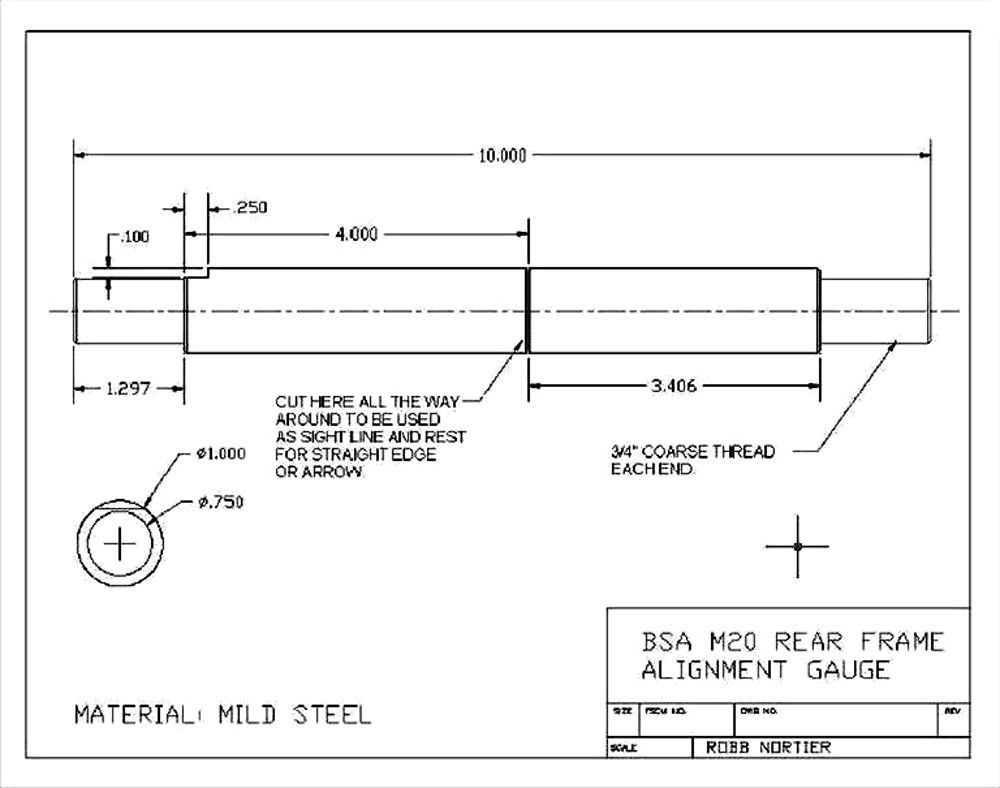
BSA WM20 frame alignment gauge

 

Mount the gauge in  place of the wheel spindle with the cut out where the snail cam pip is. Then with a straight edge, you can determine that the centre of the frame is in line with the scribe line on the gauge. 

Note: As the front tube is 1 ½” and the saddle tube is 1 3/8”, a spacer of 1/16” is required under the straight edge at the saddle tube.

Ron.

  
 
This is how I checked and straightened a frame. I Clamped a straight edge to the front and saddle tubes. I could then determine the centre position of the rear spindle and tweak the frame accordingly.

Ron.